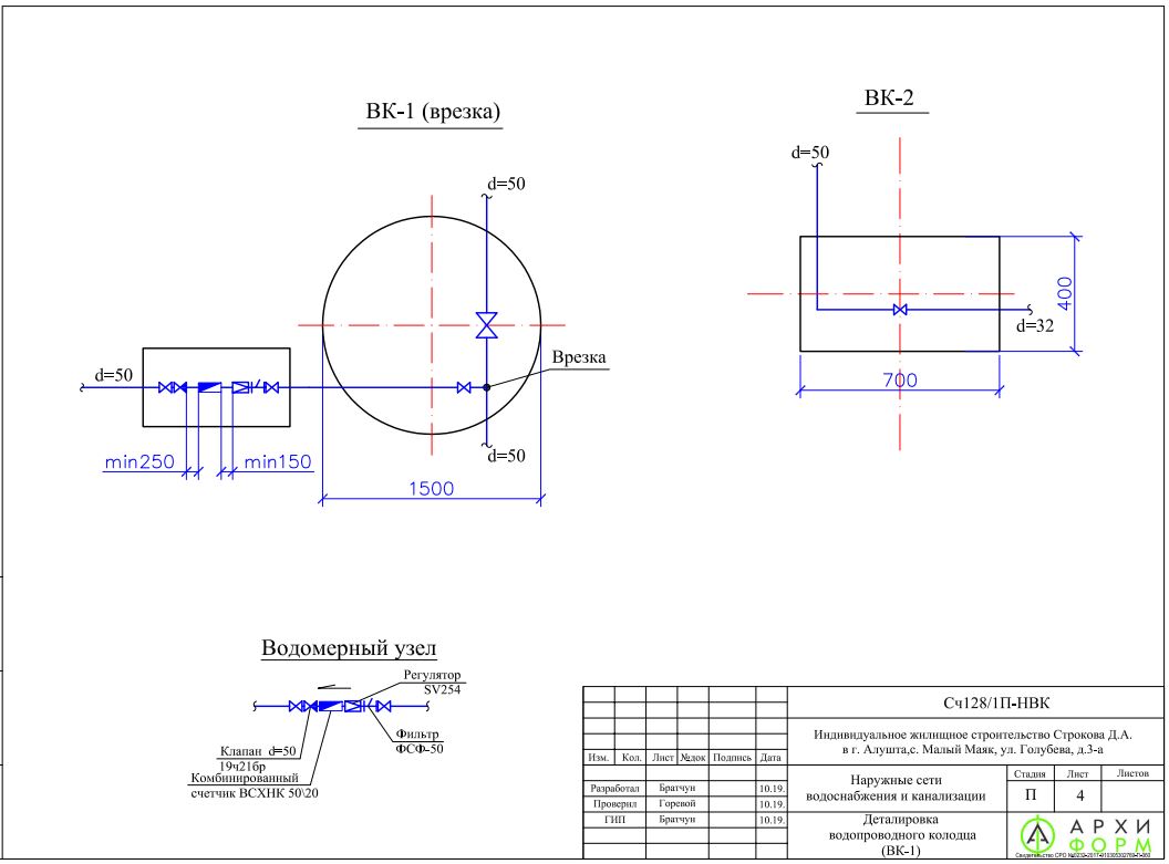
Поставка и монтаж наружных сетей водоснабжения и канализации для участка ижс г.Алушта Крым
Профи
Offline
Зарегистрирован: 11/13/2019 - 06:52
Сообщений: 2
Благодарности: 0
Поставка и монтаж наружных сетей водоснабжения и канализации для участка ижс г.Алушта Крым
Добрый день, имеется проект наружных сетей водоснабжения и канализации для участка под индивидуальное жилищное строительство в г.Алушта Крым.
Хотелось бы получить коммерческое предложение с доставкой материалов на обьект.
8 913 981 32 08 ip.strokov@bk.ru


Строительный инфорационный портал Крыма: материалы и услуги 700 крымских строительных компаний - прокрутите страницу вниз ⇓
Свой телефон укажите, пожалуйста.
8 913 981 32 08 ip.strokov@bk.ru