
Получите бесплатную консультацию
по любым вопросам строительства
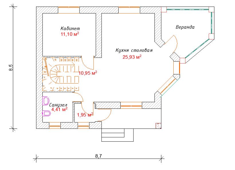
Компактный, но функциональный коттедж мансардного типа, построенный по данному проекту, может стать уютным гнёздышком для семьи из трёх-четырёх человек. В нём есть всё, что нужно для комфортной жизни: просторная кухня-столовая, санузел и комната, которая может быть, например, рабочим кабинетом, на первом этаже; три небольшие спальни и ванная комната - на мансарде. Хозяев дома также обрадует небольшая веранда на первом этаже и балкончик над главным входом, выход на который расположен в большой спальне мансарды.
или проконсультируйтесь по телефону
1000-01-02
Услуга действует только в пределах России при звонках с мобильных телефонов.Звонок платный, 10 руб/мин.